堺東モデルハウスにて相談予約受付中
Concept
ハイクラスを手の届く価格で
一流建築家と高い施工技術をもつ
ラックハウジングがタッグを組むことで実現した
Lstory。
他とは全く違う切り口で創りだされるプランを
予算にあわせてご提案。
理想の暮らしが現実になる
ハイデザインな設計プランに、どうぞご期待ください。
Architect
建築家紹介
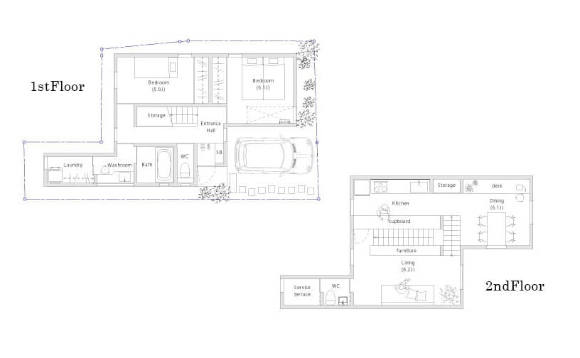
Gallery
ギャラリー
Plan
ご提案
ご要望、ライフスタイル、ご予算の条件から
プロの目線でご提案
土地の良さを
活かしたプランニング
一般的には、四角いきれいな土地が良いと思われがちです。
しかし設計力次第で、変形地や傾斜地などといった
比較的安価な土地でも、その個性を最大限に活かしたプラン提案が
可能となるのです。
このように、限りある予算のなかで最高の満足をお届けできるよう
さまざまな面からのサポート体制が整っておりますため、
安心してご相談ください。
理想をカタチにする創造
お客さまひとりひとりの思い描く理想の暮らし、それを叶えるのが一流の建築家。
そして変化し続けるライフスタイルのなかで、
変わらぬ住まい心地を実現する
そんな未来を見据えた家づくりを始めてみませんか。
建築家のアイデア、ノウハウにご期待ください。
暮らしを彩る光の演出
空間デザインをする上でなくてはならない、光の計画。
周辺環境や条件にあった光の取り込みを計画し、
日中の快適な暮らしをサポート。
夜になれば照明を利用しイメージにあわせたゆったりくつろげる
癒しの空間を演出いたします。
インテリアまでの
トータルコーディネート
壁紙やフローリングなどの内装コーディネートまでを
行うのが一般的ですが、
私達は家具選びまでが空間創りのコーディネートだと考えて
います。
お客さまの好みやイメージテイストにあわせた家具提案を
させていただき、建築家だけでなく、
専属のインテリアコーディネーターと共に
理想を理想で終わらせない、ハイクオリティな家づくりを進めて
まいりましょう。
Flow
家づくりの流れ
ヒアリング
まずはアドバイザーが家づくりについてお伺いし、
資金計画から土地探しまでもワンストップでサポート
します。
何気ない会話のなかからも理想の暮らしを汲み取り、
リスト化。
その内容を正確に建築家へ伝えます。
土地選び・敷地調査
土地について詳しいアドバイザーがご要望に合わせて
一緒に土地を探します。
土地が決まりましたら、建築家が敷地調査に向かい
土地の良さを最大限に引き出したプランニングに
進みます。
建築家からのプラン提案 1回目 無料
ヒアリングと敷地調査をもとに建築家がプランを作成。
建築家が考えるプランポイントや暮らし方提案を、
アドバイザーからお客様へご説明いたします。
なお、2回目以降については建築家との直接ミーティング
になります。(詳細はアドバイザーからご説明いたします)
建築家からのプラン提案 2・3回目
1回目のミーティングでお伺いしたご要望をもとに、
建築家がプランを修正します。
ここからは直接建築家とのミーティングになり、
よりあなたらしいプランの作成を目指します。
ご契約
家づくり全てに必要な費用をご提示します。
設計プラン、お見積り、資金計画など、
すべてに納得いただいた上でのご契約となります。
ご不明な点は遠慮なくおたずねください。
Lstoryはこんな方にオススメ
■設計事務所へ家づくり相談したいけど、
なんとなくハードルが高い・・
■建築家の家づくりは結局高額になってしまいそう・・
■自分たちの理想をくみ取って、
満足のいく間取り提案をしてほしい
■既に家づくり計画を進めているが、
間取りに満足できず難航している
■土地はあるけど、変形地などの理由で
建築を諦めている
ご相談予約詳細
開催場所
大阪府堺市堺区四条通7番15号
営業時間
10:00~17:00(1時間1組)
駐車場
コインパーキングをご利用の際は
スタッフまでお声掛けください。
弊社が負担いたします。
電話番号
メール
※注意事項
・完全予約制となっております。
・当日のご予約も可能です。
・感染症拡大防止の為、
一組ずつのご案内となります。
南海高野線堺東駅から徒歩11分



















